Vai al contenuto
Cronaca
Politica
Made in Canavese
Sport
Cultura ed Eventi
QCuccioli
Lifestyle
Opinione
CR Piemonte
Comuni
Segnalazioni
L'Opinione
IVREA - Ancora una rapina alla sala giochi di via Sant'Ulderico: bottino 800 euro
58 min fa
CANAVESE - Infermieri anche meccanici, costretti a fare manutenzione alle auto dell'Asl To4: il Nursind diffida l'azienda sanitaria
3 ore fa
CASTELNUOVO NIGRA - Incendio al tetto di una casa, intervento in forze dei vigili del fuoco
6 ore fa
CASTELLAMONTE - Ladri nelle scuole della città: svaligiate le macchinette di bevande e snack
21 ore fa
BANCHETTE - Lite in strada a coltellate: operaio trasportato in ospedale a Ivrea, aggressore denunciato a piede libero
1 giorno fa
INCIDENTE MORTALE - Un uomo di Verolengo ha perso la vita nello scontro a San Sebastiano Po
3 ore fa
SAN MAURIZIO CANAVESE - Le eccedenze della mensa scolastica donate ai cittadini bisognosi
6 ore fa
RIVAROLO CANAVESE - Ladri alle elementari: «La scuola è sempre rimasta aperta, nessun alunno è stato mandato a casa»
19 ore fa
PONT CANAVESE - Prende avvio il progetto del Centro Famiglie in un bene confiscato alle mafie
19 ore fa
ROMANO CANAVESE - Comune commissariato: arriva il viceprefetto Francesco Farina. Si voterà nel 2027
21 ore fa
QC LIVE - «Calciamo per la vita»: alle 19 in diretta tutte le novità sul torneo di beneficenza a Cuorgnè - VIDEO
1 giorno fa
VOLPIANO - Salva la vita ad un bimbo che rischia di annegare in piscina: premiato l'infermiere Gianluca Buonfiglio
1 giorno fa
IVREA - Ancora una rapina alla sala giochi di via Sant'Ulderico: bottino 800 euro
58 min fa
CANAVESE - Infermieri anche meccanici, costretti a fare manutenzione alle auto dell'Asl To4: il Nursind diffida l'azienda sanitaria
3 ore fa
CASTELNUOVO NIGRA - Incendio al tetto di una casa, intervento in forze dei vigili del fuoco
6 ore fa
CASTELLAMONTE - Ladri nelle scuole della città: svaligiate le macchinette di bevande e snack
21 ore fa
BANCHETTE - Lite in strada a coltellate: operaio trasportato in ospedale a Ivrea, aggressore denunciato a piede libero
1 giorno fa
INCIDENTE MORTALE - Un uomo di Verolengo ha perso la vita nello scontro a San Sebastiano Po
3 ore fa
SAN MAURIZIO CANAVESE - Le eccedenze della mensa scolastica donate ai cittadini bisognosi
6 ore fa
RIVAROLO CANAVESE - Ladri alle elementari: «La scuola è sempre rimasta aperta, nessun alunno è stato mandato a casa»
19 ore fa
PONT CANAVESE - Prende avvio il progetto del Centro Famiglie in un bene confiscato alle mafie
19 ore fa
ROMANO CANAVESE - Comune commissariato: arriva il viceprefetto Francesco Farina. Si voterà nel 2027
21 ore fa
QC LIVE - «Calciamo per la vita»: alle 19 in diretta tutte le novità sul torneo di beneficenza a Cuorgnè - VIDEO
1 giorno fa
VOLPIANO - Salva la vita ad un bimbo che rischia di annegare in piscina: premiato l'infermiere Gianluca Buonfiglio
1 giorno fa
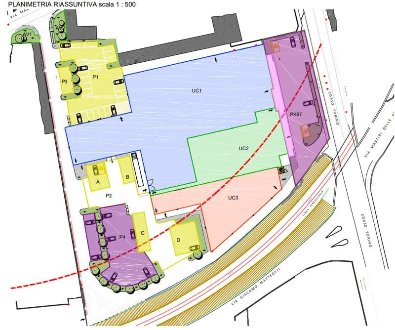
Foto 5 di 5 — RIVAROLO CANAVESE - Un nuovo centro commerciale in corso Torino al posto del vecchio concessionario auto — QC Quotidiano del Canavese | Quotidiano Canavese
Home
/
Politica
/
RIVAROLO CANAVESE - Un nuovo centro commerciale in corso Torino al posto del vecchio concessionario auto
/
Foto 5 di 5
AD — Clickio Leaderboard top
Articolo
5 / 5
Griglia
AD — Clickio Billboard 2