
RIVAROLO CANAVESE - Un nuovo centro commerciale a Rivarolo Canavese. Sorgerà in corso Torino al posto del vecchio concessionario auto. A due passi dai binari della ferrovia per Pont Canavese e, soprattutto, a due passi dal McDonald's. Che l'area in questione, con l'arrivo del fast food, potesse risvegliare gli interessi commerciali di grandi o medie catene era in parte previsto. Così la giunta comunale di Rivarolo, lo scorso 19 aprile 2023, ha dato il via libera alla trasformazione del vecchio concessionario abbandonato.
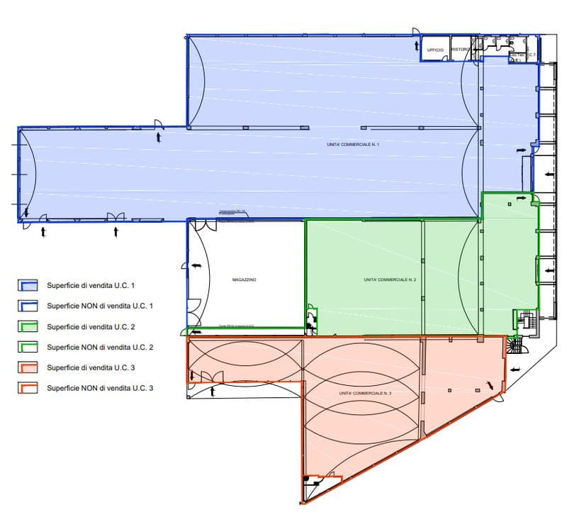
La proprietà ha ottenuto il via libera all'autorizzazione unica relativa all'intervento di «Ristrutturazione edilizia, cambio di destinazione d'uso (da ex officina a commerciale) demolizione di piccoli fabbricati accessori ed ampliamento di edificio esistente, con creazione complessiva di 3 medie strutture di vendita», come da planimetria che trovate nelle immagini di questo articolo.
Il nuovo centro commerciale, che nascerà su un'area complessiva di 9mila metri quadrati, sarà quindi suddiviso in tre unità di vendita: ancora top secret marchi e tipologie. Previsti anche nuovi parcheggi, passaggi pedonali e verde pubblico che faranno parte del progetto complessivo. Un'altra conferma dell'appeal commerciale di Rivarolo e, in particolare, dell'area di corso Torino che, dopo l'apertura del McDonald's, sogna anche un riutilizzo dell'ex Salp, da decenni in stato di abbandono.















