
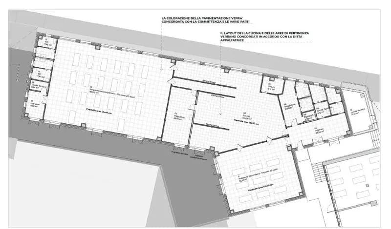
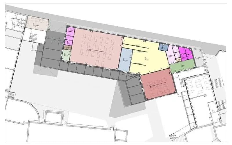
SAN BENIGNO CANAVESE - Sono entrati nel vivo il lavori di costruzione dell'edificio che ospiterà a San Benigno Canavese la nuova mensa delle scuole primaria e secondaria. Nei giorni scorsi, il sindaco, Alberto Graffino, e gli amministratori comunali hanno fatto un sopralluogo in cantiere per monitorare la situazione.
«E' il più importante progetto territoriale degli ultimi 20 anni - spiega il primo cittadino di San Benigno - questo non soltanto sotto il profilo economico, che permetterà di ottenere nuovi spazi pensati per una corretta educazione alimentare, con un deciso risparmio energetico e che al contempo libererà nuovi spazi che si potranno dedicare alla didattica».
L'intervento sarà realizzato con un finanziamento del Pnrr «fortemente cercato e voluto dall'amministrazione che porta sul territorio, con un solo intervento, risorse per più di 2 milioni di euro».












