
MAPPANO - Sono stati deliberati, dalla giunta di Mappano guidata dal sindaco Francesco Grassi, i progetti esecutivi per le aree dell'ex asilo nido di via Nino Costa e dell'ex polo industriale Craver-Condor. «Oltre al milione di euro ottenuto la scorsa primavera - spiega l’Assessore Tornabene - lo scorso ottobre siamo riusciti a farci riconoscere dallo Stato un contributo aggiuntivo del 10% che ci ha permesso di mitigare, almeno in parte, l’aumento dei costi dei materiali e così, seppur con alcuni mesi di ritardo, riusciremo a realizzare i due interventi».
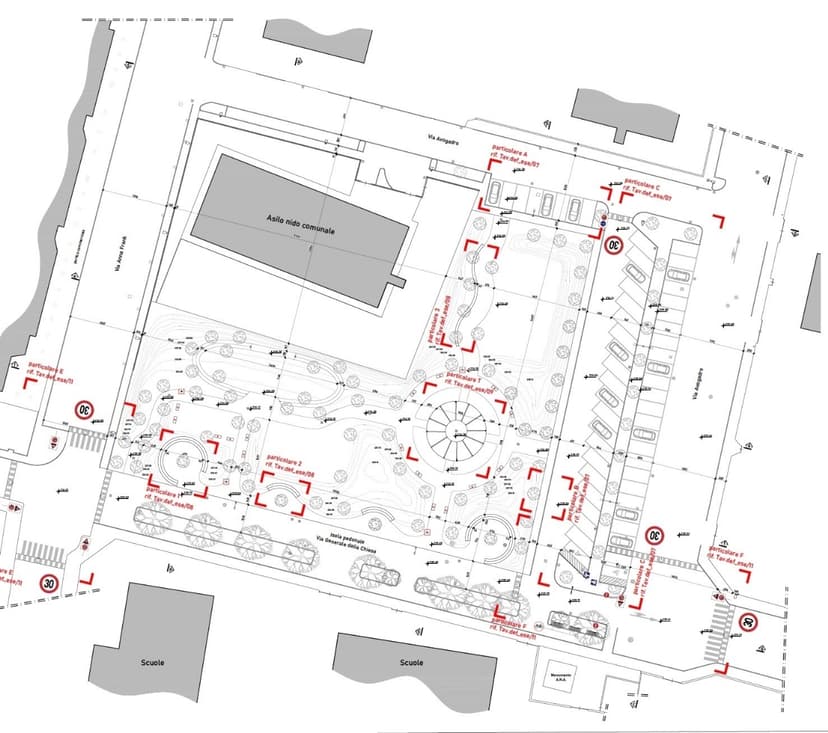
In via Nino Costa verrà smantellato e bonificato dall’amianto l’ex Asilo Nido, verranno realizzati dei parcheggi a servizio dei residenti ma soprattutto un marciapiede che, lungo il perimetro scolastico, permetterà ai bambini, ai genitori ed al personale di accedere in sicurezza all’ingresso secondario della Scuola di via Giotto, da decenni particolarmente critico.
L’ex area Craver-Condor, di fronte alla scuola primaria, verrà definitivamente convertita in parco pubblico, con un importante ampliamento dell’isola pedonale di via dalla Chiesa, anche attraverso l’abbattimento della vecchia recinzione industriale, la realizzazione di una collinetta a protezione dell’asilo nido comunale, di oltre 50 parcheggi anche a servizio della vicina Chiesa parrocchiale e di due piattaforme rialzate di moderazione della velocità all’angolo con via Avogadro e sul lato opposto all’incrocio con via Don Murialdo. Un intervento che permetterà anche di dare maggiore visibilità alle attività commerciali site in via Anna Frank. «Nei prossimi giorni - conclude Tornabene - daremo avvio alle procedure per assegnare gli appalti e ci auguriamo, con l’inizio della stagione primaverile, di iniziare i lavori».










