
RIVAROLO CANAVESE - Due negozi per la casa e uno store di abbigliamento uomo, donna e bambino. E' quanto dovrebbe aprire nel nuovo centro commerciale di corso Torino a Rivarolo Canavese, al posto del vecchio concessionario auto. A due passi dai binari della ferrovia per Pont e, soprattutto, di fronte al McDonald's.
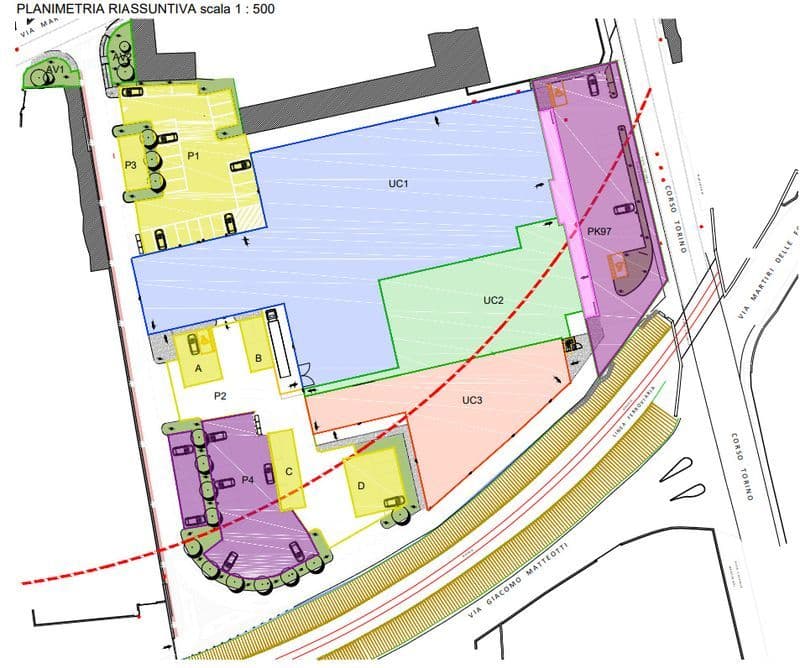
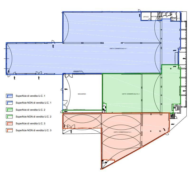
In attesa che anche la vecchia Salp lasci il posto ad un supermercato (Tigros), l'ex concessionario auto sta prendendo forma. I lavori sono iniziati a luglio e stanno procedendo spediti: possibile inaugurazione in autunno. Il nuovo centro commerciale, che nascerà su un'area complessiva di 9mila metri quadrati, sarà quindi suddiviso in tre unità di vendita: non sono previste attività alimentari, come aveva già assicurato la passata amministrazione comunale di Rivarolo che ha seguito l'iter di ristrutturazione e recupero della struttura commerciale.
Lo store di abbigliamento dovrebbe far parte della catena «Terranova», già presente a Torino e provincia con altri sette negozi, tre a Torino e quattro in altri Comuni (il più vicino all'area Canavese si trova a Settimo).
Per rimanere sempre aggiornato con le notizie di Quotidiano Canavese, scarica la nostra APP gratuita disponibile sugli store online per tutti i telefoni smartphone oppure iscriviti al nostro canale WhatsApp per ricevere sul telefono gli aggiornamenti! E' tutto gratis!















